Aleksandra Čaka iela 72
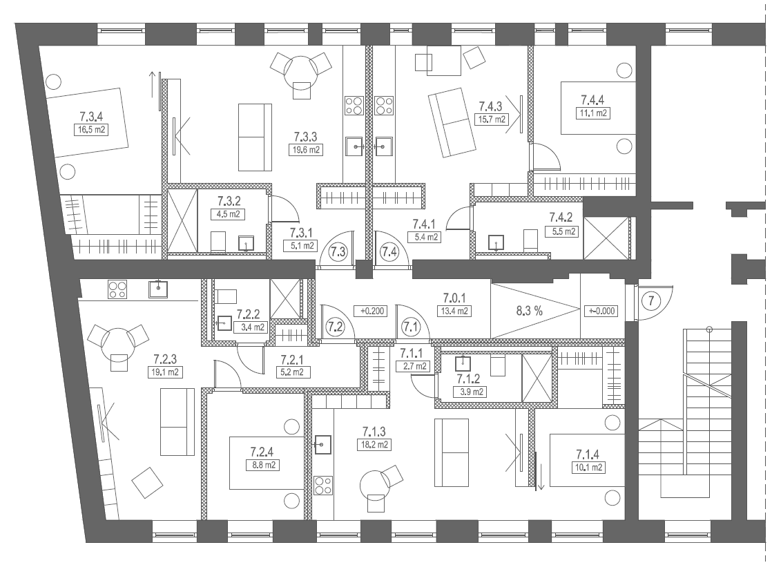
160m2 laukums, ko pārvērtām 4 funkcionālās dzīvokļos Čaka ielā 72.
Kopējā platība 160m², no kuriem tika sadalīti un izveidoti četri 2-istabu dzīvokļi platībā no 34m² – 48m², kas bija paredzēti izīrēšanai, ļoti veiksmīgi apvienojot funkcionālo plānojumu ar mūsdienīgu dizainu, īpašumam sniedz pievienoto vērtību, lai tas būtu likvīds.
Pārdots investoram, kas iegādājās visus 4 dzīvokļus izīrēšanais.





