Jaunie projekti
-
Āgenskalna atslēga 1
229 870
€
Apskatīt 360° tūri
Informācija par īpašumu
Cena
229 870
€
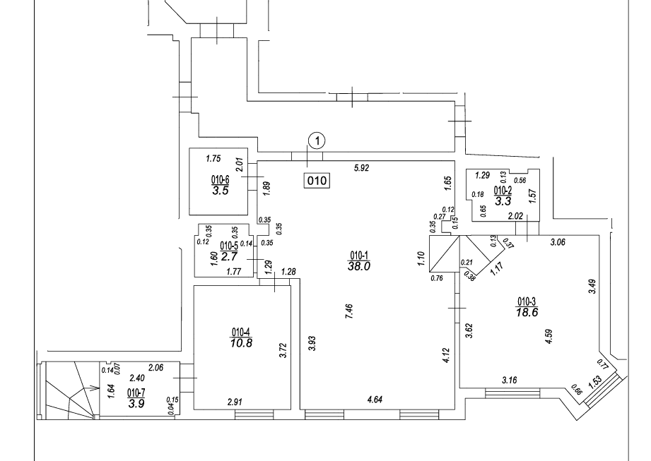
Kopējā platība (m²)
80,8
Dzīvojamā platība
76,9
Istabu skaits
3
Guļamistabu skaits
2
Vannasistabu skaits
2
Stāvs
1
Īpašuma apraksts
un plānojums
Attīstītājs piedāvā iegādāties dzīvokli unikālā ēkā vēstures un arhitektūras cienītājiem – pilnībā restaurēta viena no pirmajām jūgendstila koka ēkām Rīgā. Tā celta 1904. gadā pēc arhitekta Alfrēda Ašenkampfa projekta. Ēkas arhitektūra veidota kā izsvērts līdzsvars starp estētiku un praktiskumu, saglabājot laikmeta šarmu un pielāgojot to mūsdienu prasībām.
Konkrētais dzīvoklis piedāvā pārdomātu plānojumu – viesistaba, kas apvienota ar virtuves zonu, sanmezgls ar dušu, saimniecības telpa un 2 atsevišķas guļamistabas, no kurām vienā ir vannas istaba. Dzīvoklis tiek piedāvāts ar pilnu iekšējo apdari, taču bez virtuves iekārtas un gaismekļiem, sniedzot iespēju jaunajiem īpašniekiem iekārtot interjeru pēc savas gaumes.
Ēkas pagalms ir labiekārtots, nodrošinot komfortu ikdienā. Ir iespēja iegādāties autostāvvietu. Lielākajai daļai dzīvokļu ir balkoni vai terases, kas sniedz iespēju baudīt privātu ārtelpu pilsētvidē. Zeme ir īpašumā, un dzīvokļi ir reģistrēti kā dzīvokļu īpašumi.
Projektā pieejami 8 dzīvokļi dažādās platībās – gan ar 2, 3, gan 4 istabām. Visi dzīvokļi tiek piedāvāti ar pilnu apdari un pabeigtiem sanitārajiem mezgliem.
Atjaunošanas procesā īpaša uzmanība pievērsta vēsturisko detaļu saglabāšanai. Pilnībā atjaunota ēkas fasāde un jumts, nomainītas visas inženierkomunikācijas . Katram dzīvoklim ir savs individuālais apkures skaitītājs, kas ļauj pielāgot siltumu atbilstoši savām vajadzībām un samazināt izmaksas.
Sazinies ar mums, lai uzzinātu vairāk un vienotos par laiku dzīvokļu apskatei!

Īpašuma adrese
Kristapa iela 2, Rīga
Rezervē šo īpašumu
Dalies ar īpašuma linku











