Information about the property
Price
750
€
Total area (m²)
55
Living area
55
Istabu skaits
2
Number of bedrooms
1
Number of bathrooms
1
Level
3
Other conveniences
Fully equipped
Active city centre
Parking
Signal
Shower
Property description
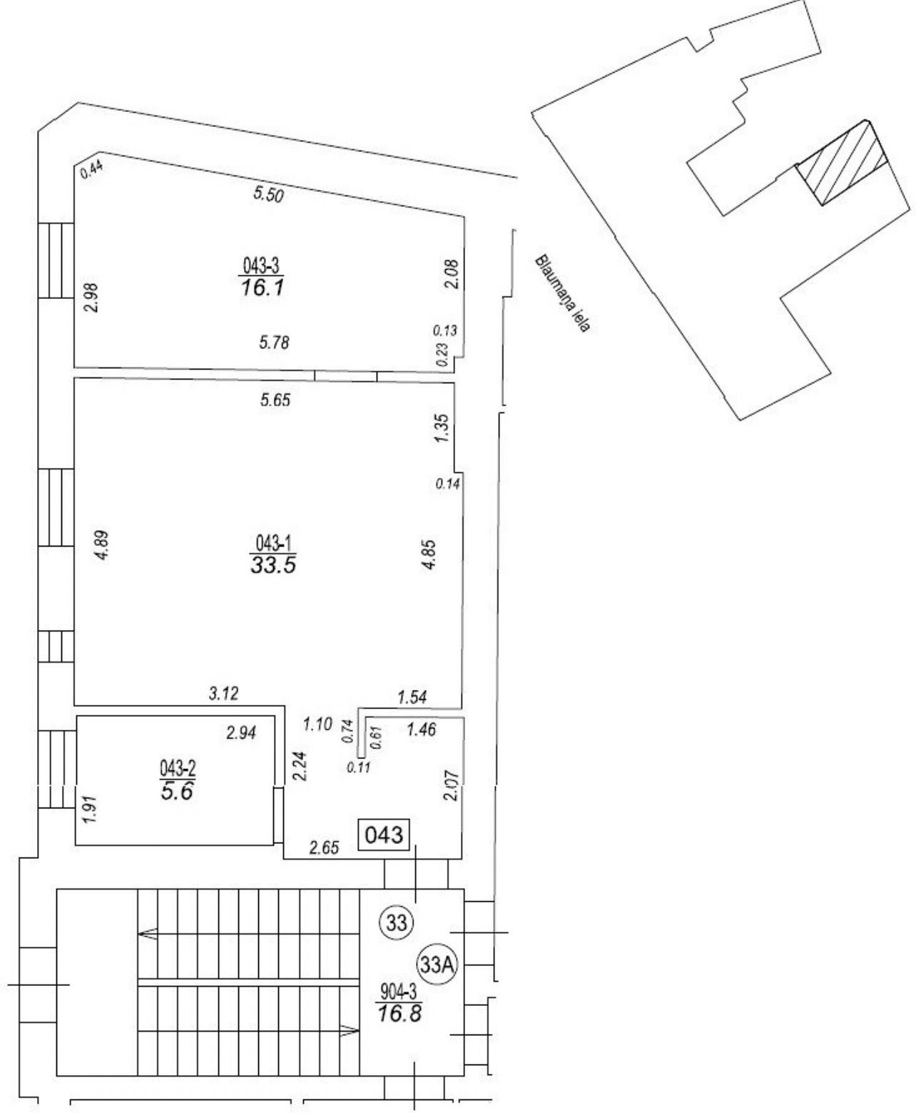
a plan
Izīrē skaistu, gaišu un izremontētu 2-istabu dzīvokli Rīgas centrā, Blaumaņa ielā 9.
Dzīvoklis pēc kvalitatīva remonta — ar jaunām mēbelēm, aprīkotu virtuvi un sadzīves tehniku. Mūsdienīgs un funkcionāls plānojums: studio tipa viesistaba apvienota ar virtuvi, izolēta guļamistaba, plaša garderobe, priekšnams un sanmezgls ar dušu.
Uzstādīta augstvērtīga virtuves tehnika: trauku mazgājamā mašīna, veļasmašīna ar žāvētāja funkciju, indukcijas plīts virsma, cepeškrāsns, ledusskapis ar saldētavu, tvaika nosūcējs, TV un signalizācija.
Komunālie maksājumi: ziemā ap 180 €, vasarā ap 100 €.
Par papildu 100 €/mēn. pieejama autostāvvieta drošā iekšpagalmā.
Mājdzīvnieki nav atļauti.
____
A beautiful, bright and newly renovated 2-room apartment for rent in the center of Riga, at Blaumaņa Street 9.
The apartment has undergone high-quality renovation — featuring new furniture, a fully equipped kitchen and household appliances. The layout is modern and functional: an open-plan living room combined with the kitchen, a separate bedroom, a spacious walk-in wardrobe, an entrance hall and a bathroom with a shower.
The kitchen is equipped with high-quality appliances: a dishwasher, a washer-dryer, an induction cooktop, an oven, a fridge with a freezer, a cooker hood, a TV and a security system.
Utilities: approximately €180 per month in winter and €100 per month in summer.
A parking space in a secure courtyard is available for an additional €100 per month.
Pets are not allowed.

Property address
Blaumaņa iela 9
Reserve this property
Share the property link










