Information about the property
Price
94,500
€
Total area (m²)
33
Living area
33
Istabu skaits
2
Number of bedrooms
1
Number of bathrooms
1
Level
1
Other conveniences
Parking
Individual meters (including for heating)
Property description
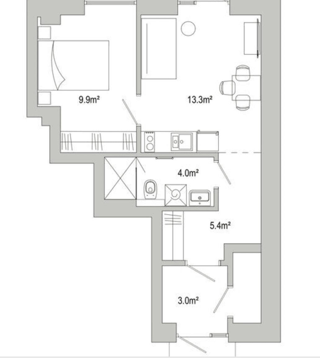
a plan
Piedāvājumā ekskluzīvs divistabu dzīvoklis mierīgā iekšpagalma ēkā Teikā. Nelielā dzīvojamā ēkā ir tikai trīs dzīvokļi, un katram no tiem paredzēta atsevišķa, neatkarīga ieeja, nodrošinot privātumu, komfortu un privātmājas sajūtu.
Ēka projektēta Bauhaus stilā. Projekta idejas autore ir viena no atzītākajām Latvijas arhitektēm Zane Tetere Šulca (arhitektu birojs OpenAD).
Par ēku:
Mūra konstrukcijas ēka ar 200 mm siltumizolāciju. Fasāde apdarināta ar dekoratīvo apmetumu un marmora akmentiņiem, logu ailes flīzētas. Uzstādīti alumīnija logi un ārdurvis ar trīskāršo stikla paketi. Katram dzīvoklim ir individuālie skaitītāji. Visā dzīvoklī ierīkotas apsildāmās grīdas ar iespēju regulēt temperatūru katrā telpā atsevišķi.
Efektīvu apkuri nodrošina gaiss–ūdens siltumsūknis, savukārt saules paneļi palīdz samazināt elektroenerģijas izmaksas saulainā laikā.
Dzīvoklim ir lieli panorāmas logi un augsti griesti (3,3 m), kas telpām piešķir īpašu gaišumu un plašuma sajūtu.
Plānojums:
- Viesistaba apvienota ar virtuves zonu, ar tiešu izeju uz terasi un skatu uz labiekārtotu pagalmu;
- Guļamistaba ar izeju uz terasi;
- Vannas istaba ar sanitāro mezglu;
- Koridors;
- Papildu priekštelpa pie ieejas, piemērota iebūvēta skapja ierīkošanai.
- Terases platība – 12 m².
Apdare un aprīkojums:
Ozolkoka parketa grīdas, krāsotas reģipša sienas, masīvkoka iekšdurvis. Vannas istabā – flīzēta grīda un dvieļu žāvētājs. Dzīvokļa cenā iekļauta pilnībā aprīkota virtuves iekārta.
Apsaimniekošanas maksa – 0,45 EUR/m².
Cenā ietilpst viena virszemes autostāvvieta.
Teritorija ir slēgta, sakopta un aprīkota ar videonovērošanu.
Projekts atrodas Teikā – zaļā, mierīgā un labi attīstītā Rīgas rajonā. Pārtikas veikals atrodas 4 minūšu gājiena attālumā, savukārt tirdzniecības centrs Alfa – aptuveni 10 minūšu attālumā kājām. Apkārtnē pieejamas skolas, bērnudārzi un ērta piekļuve sabiedriskajam transportam.

Property address
Ropažu iela 75a
Reserve this property
Share the property link







